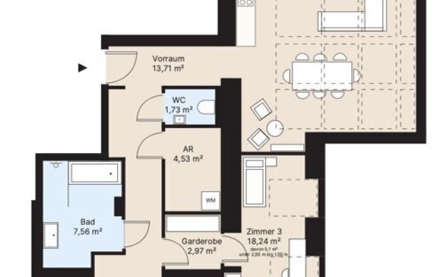
Top 38 / Eigentumswohnung 115,04 m² mit Terrasse
Rinnböckstraße 23, 1110 Wienin unmittelbarer Nähe zur Simmeringer Hauptstraße – zur U3 sind es rund 5 Minuten Fußweg – die zukünftige Mega-Eventhalle bzw. Marxer Halle sind keine 10 Minuten Gehweg entfernt, oder auch für sportliche Aktivitäten ist in unmittelbarer Nachbarschaft gesorgt.
Der in unmittelbarer Nähe befindliche Rennweg bietet eine gute Einkaufsinfrastruktur, Kindergärten und Ärzte. Die öffentliche Anbindung ist durch die U3-Station Zippererstraße und die Straßenbahn-Linie 71 sehr gut.
Provisionsfrei - Direkt vom Bauträger
7 Eigentumswohnungen von 50 m² bis 120 m² (teilweise mit Freifläche)
Mit der Rinnböckstraße 23 und den dort entstehenden sieben Eigentumswohnungen von 50 m² bis 120 m² (teilweise mit Freifläche) sind Sie in unmittelbarer Nähe zur Simmeringer Hauptstraße. Die 2 bis 4 Zimmer-Wohnungen sind auf sehr hohem Niveau ausgestattet und verfügen teilweise über Freiflächen.
Wir weisen darauf hin, dass zwischen dem Vermittler und dem Auftraggeber ein familiäres oder wirtschaftliches Naheverhältnis besteht.










